Spacer
spacer Logo
spacer
DE  EN
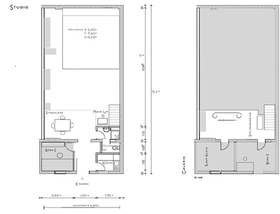
spacer Grundriss - KlICK IN STUDIOS
Spacer